中国政府网
|
宁夏政府网
|
固原市政府网
|
登录个人中心
简体
|
繁体
无障碍阅读
长者模式
网站首页
新闻中心
政府信息公开
政务服务
互动交流
走进泾源
当前位置:首页 > 政府信息公开 > 法定主动公开内容 > 行政权力运行 > 行政许可结果公开
索引号
640424063/2025-00007
文号
发布机构
泾源县审批服务管理局
责任部门
有效性
有效
公开日期
2025-04-29
名称
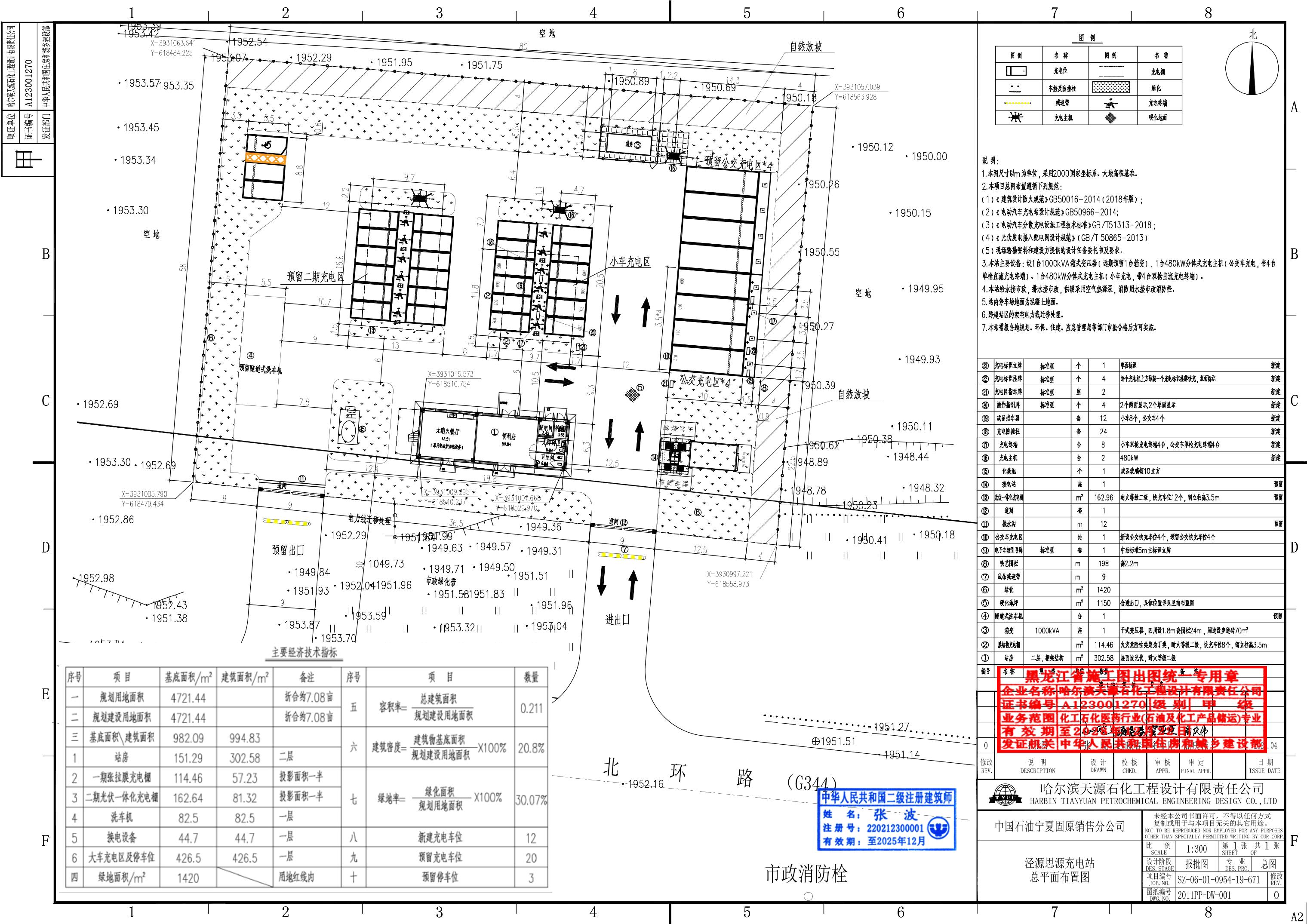
中国石油天然气股份有限公司宁夏固原销售分公司“中国石油天然气股份有限公司宁夏固原销售分公司泾源思源充换电站”建设用地规划许可证核发
中国石油天然气股份有限公司宁夏固原销售分公司“中国石油天然气股份有限公司宁夏固原销售分公司泾源思源充换电站”建设用地规划许可证核发
日期:2025-04-29 来源:泾源县审批服务管理局
打印页面
关闭页面
分享:
用微信扫描二维码
分享至好友和朋友圈
×
附件下载:
扫一扫在手机上查看当前页面